티스토리 뷰
안녕하세요. 저번에 이어서 무대에서 가장 많이 사용되는 용어들을 정리해보려고 합니다. 사실 공연을 준비하여 전문화된 공연장에 가게 된다면 해당 공연장의 무대 감독과의 소통에 있어서 어려움이 있는 경우가 많습니다. 성악, 뮤지컬 전공하신 분들은 처음에 상수, 하수라는 이야기를 들으면 도통 무엇인지 모르지요. 그렇게에 한방에 정리해 드리겠습니다.
1. 상수와 하수
사실 상수와 하수는 일본어에서 비롯됩니다. 상수(定数)는 보통 객석에서 무대를 바라보았을 때를 기준으로 오른쪽을 의미하고 하수(下水)는 왼쪽을 의미합니다. 즉 그림으로 그려본다면 이런식으로 그려지게 됩니다
# 그림 1

2. 다운스테이지와 업 스테이지
두 번째는 다운 스테이지와 업 스테이지입니다. 다운 스테이지는 무대를 위 그림 1과 같이 마름모꼴로 볼 때, 무대 쪽의 큰 변으로 이루어진 곳을 다운 스테이지라고 말하고 반대로 좁은 변을 업 스테이지라고 말합니다. 다운 스테이지가 객석에 가깝습니다.
3. 상수와 하수 다운 스테이지와 업 스테이지로 나눌 수 있는 무대 구역
상수와 하수 다운 스테이지와 업 스테이지로 나누는 가장 큰 이유는 연극, 오페라, 뮤지컬 등 동선이 있는 예술에서 출연자들의 동선을 구역을 나누어 파악하기 위해서입니다. 그리고 무대에서 설치되는 소품, 무대 기구의 위치 등을 표현할 때 주로 사용합니다.
#그림 2

상수, 하수, 다운 스테이지, 업 스테이지로 구분할 수 있는 방법은 위와 같습니다. 이렇게 9개의 구역으로 구분하는 것은 주로 각 지역의 문화예술회관 대극장(800~1000석 이상)의 공연장에서 주로 사용되며, 무대 중에서도 프로시니엄 무대를 기준으로 나누어지게 됩니다.
4. 프로시니엄 무대
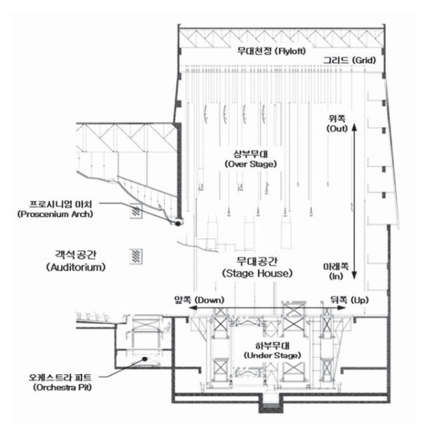
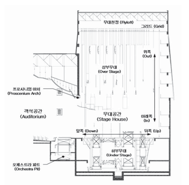
프로시니엄 무대란 한 마디로 정의한다면 액자형의 무대라고 할 수 있습니다. 대부분의 공연장이 프로시니엄 무대로 제작되어 있으며, 연극, 무용, 오페라, 뮤지컬에 있어서 다양한 조명을 설치할 수 있는 높은 그리드가 존재하고 원근법에 근간하여 제작되었기 때문에 관객이 무대를 볼 때 한 장의 사진처럼 각각의 장면들이 표현됩니다. 프로시니엄 무대의 평면도 정면도, 단면도를 보시겠습니다.

위 그림은 프로시니엄 무대의 정면도입니다. 먼저 프로시니엄 아치라고 하는 부분이 보이는데 이것은 액자틀 같은 역할을 해줍니다. 객석으로 튀어나온 아프론 같은 경우 위 그림은 둥글게 되어 있지만 무대에 따라 틀려집니다. 위 그림에서 프로시니엄 아치는 하나의 면으로 제작된 것으로 나오지만 천, 목재, 아크릴 등의 다양한 소재로 임시적으로 만들 수도 있습니다.

프로시니엄 무대 평면도입니다. 주무대와 오케스트라 박스 중간에 프로시니엄이 위치하는 것을 알 수 있습니다.

단면도는 위와 같습니다. 통상 오케스트라 피트 아래에는 의자, 보면대, 악기 등이 보관되며 하부 무대(무대 아래)에는 주로 덜 중요한 무대장치(덧마루, 이음새 등)가 주로 비치되며 무대 상부에는 조명, 각종 무대장치를 설치할 수 있는 그리드가 위치하고 있습니다. 통상 무대에서 쓰이는 대부분의 조명이 그리드에 설치됩니다.(물론 팔로우 조명은 제외되는 경우도 있습니다.)
5. 무대 용어의 정리
이밖에도 통상 스텝들과 감독, 연출자들이 주로 쓰는 용어들을 정리하여 아래 첨부해보겠습니다.
<출처 : 국립중앙극장>
6. 맺는말
통상 스텝이나 연주자로서 곧 무대에 서야 되시는 분들이라면 위 글에서 말씀드린 상수, 하수, 다운 스테이지, 업 스테이지, 그리고 프로시니엄의 위치만 정확히 알고 가셔도 연습, 혹은 실제 공연에서 크게 어려움이 없을 것입니다. 스텝으로 오랜 시간 다양한 공연을 해보았지만, 공연에서 가장 중요한 것은 플레이어들이 관객에게 주는 감동입니다. 꼭 좋은 연주자가 되시길 바라며 이 글을 마치겠습니다. 감사합니다.
'anything 박학다식' 카테고리의 다른 글
| 한글 단축키 모음(1) (0) | 2021.01.05 |
|---|---|
| 취업률 높은 전공학과 Best5 (0) | 2020.12.15 |
| 골키퍼 잘 하는법(2) (0) | 2020.06.14 |
| 골키퍼 잘하는 법(1) (0) | 2020.06.08 |
| 여름철에 쓸만한 남자향수 추천 best 5 (0) | 2020.06.01 |